0086 15335008985
ویژگی ها و برنامه های اصلی
1) شیر دروازه برقی MZ MIN در اتاق پمپ آب در اتاق پمپ زیرزمینی به خطوط لوله ورودی و خروجی پمپ آب اعمال می شود ، و دو نوع وجود دارد: نوع تقسیم و نوع یکپارچه:
پس از استفاده در رابطه با جعبه کنترل دستگاه Electric دevice برقی KXBC Mining ، شیر برقی از نوع Split Type را می توان برای دستیابی به سیستم دCS وصل کرد
کنترل اتوماسیون اتاق پمپ آب زیرزمینی در معادن ذغال سنگ ؛
شیر یکپارچه Gate Gate دارای یک سیستم کنترل است که می تواند روشن و خاموش یا از راه دور بر روی بدن کنترل شود و به سوئیچینگ یا تنظیم از راه دور برسد
هیچ جعبه کنترل اضافی لازم نیست.
2) Modbus ، Profibus و سایر ارتباطات اتوبوس را می توان پیکربندی کرد ، با 485 رابط اتوبوس برای دستیابی به ارتباطات داده.
3) دریچه Gate Gate Electric Series MZ به راحتی نصب می شود ، بدون نیاز به جهت نصب ، آب بندی دو جهته ، نگهداری مناسب و عمر طولانی مدت ،
4) شیرهای دستی موجود در معادن زغال سنگ می توانند به طور مستقیم به دریچه های برقی تبدیل شوند تا کنترل اتوماسیون بدون تأثیرگذاری بر تولید طبیعی معادن زغال سنگ تقویت شود
استانداردهای اعدام
| طراحی و ساخت | GB/T 12221-2005 GB/T 12222-2005 GB/T 12224-2005 GB/T 12234-2007 |
| اتصال خط لوله | GB9113.1 ~ GB9113.4-2000 |
| بازرسی و آزمایش | GB/T 13927-2008 JB/T9092-1999 |
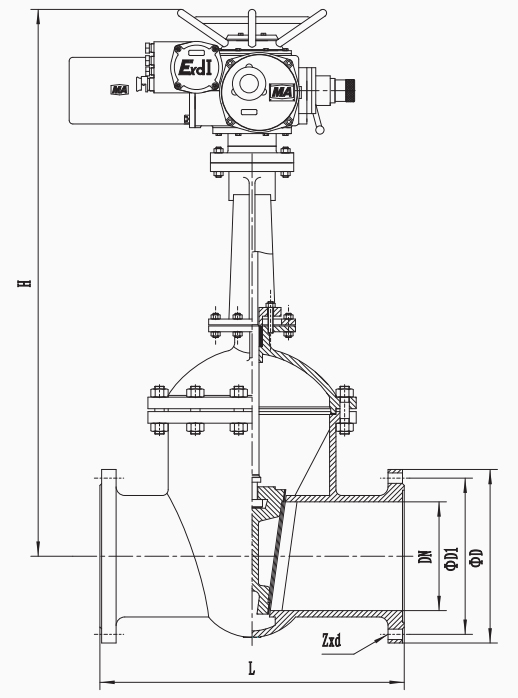
نمودار شماتیک ساختاری
جدول انتخاب برای اندازه اتصال و دستگاههای برقی ضد انفجار معدن
شیر دروازه برقی MZ941سخنرانی-16
| ابعاد اصلی دریچه (میلی متر) | پارامترهای اصلی ضد انفجار معدن دستگاه الکتریکی شیر یکپارچه یکپارچه انفجار نوع/معدن | ||||||||
| دن | سعادت | د | د1 | Z × د | سخنرانی | مشخصات مدل | گشتاور (n · m) | سرعت (r/min) | نیروی حرکتی (KW) |
| 50 | 250 | 160 | 125 | 4 × F18 | 615 | ZB/Zby10 | 100 | 24 | 0.25 |
| 65 | 265 | 180 | 145 | 4 × F18 | 625 | ZB/ZBY15 | 150 | 24 | 0.37 |
| 80 | 280 | 195 | 160 | 8 × F18 | 700 | ZB/ZBY15 | 150 | 24 | 0.37 |
| 100 | 300 | 215 | 180 | 8 × F18 | 760 | ZB/Zby20 | 200 | 24 | 0.55 |
| 125 | 325 | 245 | 210 | 8 × F18 | 825 | ZB/Zby20 | 200 | 24 | 0.55 |
| 150 | 350 | 280 | 240 | 8 × F23 | 920 | ZB/ZBY30 | 300 | 24 | 0.75 |
| 200 | 400 | 335 | 295 | 12 × F23 | 1075 | ZB/ZBY30 | 300 | 24 | 0.75 |
| 250 | 450 | 405 | 355 | 12 × F25 | 1265 | ZB/ZBY45 | 450 | 24 | 1.1 |
| 300 | 500 | 460 | 410 | 12 × F25 | 1480 | ZB/Zby60 | 600 | 24 | 1.5 |
| 350 | 550 | 520 | 470 | 16 × F25 | 1660 | ZB/Zby90 | 900 | 24 | 2.2 |
| 400 | 600 | 580 | 525 | 16 × F30 | 1930 | ZB/Zby90 | 900 | 24 | 2.2 |
| 450 | 650 | 640 | 585 | 20 × F30 | 2000 | ZB/Zby120 | 1200 | 24 | 3 |
شیر دروازه برقی MZ941سخنرانی-25
| ابعاد اصلی دریچه (میلی متر) | پارامترهای اصلی ضد انفجار معدن دستگاه الکتریکی شیر یکپارچه یکپارچه انفجار نوع/معدن | ||||||||
| دن | سعادت | د | D1 | Z × D | سخنرانی | مشخصات مدل | گشتاور (n · m) | سرعت (r/min) | نیروی حرکتی (KW) |
| 50 | 250 | 160 | 125 | 4 × F18 | 625 | ZB/Zby10 | 100 | 24 | 0.25 |
| 65 | 265 | 180 | 145 | 8 × F18 | 630 | ZB/ZBY15 | 150 | 24 | 0.37 |
| 80 | 280 | 195 | 160 | 8 × F18 | 710 | ZB/ZBY15 | 150 | 24 | 0.37 |
| 100 | 300 | 230 | 190 | 8 × F23 | 745 | ZB/Zby20 | 200 | 24 | 0.55 |
| 125 | 325 | 270 | 220 | 8 × F25 | 860 | ZB/Zby20 | 200 | 24 | 0.55 |
| 150 | 350 | 300 | 250 | 8 × F25 | 925 | ZB/ZBY30 | 300 | 24 | 0.75 |
| 200 | 400 | 360 | 310 | 12 × F25 | 1155 | ZB/ZBY30 | 300 | 24 | 0.75 |
| 250 | 450 | 425 | 370 | 12 × F30 | 1360 | ZB/ZBY45 | 450 | 24 | 1.1 |
| 300 | 500 | 485 | 430 | 16 × F30 | 1465 | ZB/Zby60 | 600 | 24 | 1.5 |
| 350 | 550 | 550 | 490 | 16 × F34 | 1670 | ZB/Zby90 | 900 | 24 | 2.2 |
| 400 | 600 | 610 | 550 | 16 × F34 | 1930 | ZB/Zby120 | 1200 | 24 | 3.0 |
| 450 | 650 | 660 | 600 | 20 × F34 | 2150 | ZB/Zby120 | 1200 | 24 | 3.0 |
MZ941سخنرانی-40 شیر دروازه برقی معدن
| ابعاد اصلی دریچه (میلی متر) | پارامترهای اصلی ضد انفجار معدن دستگاه الکتریکی شیر یکپارچه یکپارچه انفجار نوع/معدن | ||||||||
| دن | سعادت | D | D1 | Z × D | سخنرانی | مشخصات مدل | گشتاور (n · m) | سرعت (r/min) | نیروی حرکتی (KW) |
| 50 | 250 | 160 | 125 | 4 × F18 | 685 | ZB/Zby10 | 100 | 24 | 0.25 |
| 65 | 280 | 180 | 145 | 8 × F18 | 725 | ZB/ZBY15 | 150 | 24 | 0.37 |
| 80 | 310 | 195 | 160 | 8 × F18 | 755 | ZB/ZBY15 | 150 | 24 | 0.37 |
| 100 | 350 | 230 | 190 | 8 × F18 | 805 | ZB/Zby20 | 200 | 24 | 0.55 |
| 125 | 400 | 270 | 220 | 8 × F25 | 840 | ZB/Zby20 | 200 | 24 | 0.55 |
| 150 | 450 | 300 | 250 | 8 × F25 | 960 | ZB/ZBY30 | 300 | 24 | 0.75 |
| 200 | 550 | 375 | 320 | 12 × F30 | 1100 | ZB/ZBY45 | 450 | 24 | 1.1 |
| 250 | 650 | 445 | 385 | 12 × F34 | 1440 | ZB/ZBY45 | 450 | 24 | 1.1 |
| 300 | 750 | 510 | 450 | 16 × F34 | 1500 | ZB/Zby60 | 600 | 24 | 1.5 |
| 350 | 850 | 570 | 510 | 16 × F34 | 1750 | ZB/Zby120 | 1200 | 24 | 3.0 |
| 400 | 950 | 655 | 585 | 16 × F41 | 1800 | ZB180 | 1800 | 24 | 5.5 |
MZ941H-64 شیر دروازه برقی معدن
| ابعاد اصلی دریچه (میلی متر) | پارامترهای اصلی ضد انفجار معدن دستگاه الکتریکی شیر یکپارچه یکپارچه انفجار نوع/معدن | ||||||||
| دن | سعادت | D | D1 | Z × D | H | مشخصات مدل | گشتاور (n · m) | سرعت (r/min) | نیروی حرکتی (KW) |
| 50 | 250 | 175 | 135 | 4 × F23 | 680 | ZB/Zby10 | 100 | 24 | 0.25 |
| 65 | 280 | 200 | 160 | 8 × F23 | 700 | ZB/ZBY15 | 150 | 24 | 0.37 |
| 80 | 310 | 210 | 170 | 8 × F23 | 725 | ZB/Zby20 | 200 | 24 | 0.55 |
| 100 | 350 | 250 | 200 | 8 × F25 | 805 | ZB/Zby20 | 200 | 24 | 0.55 |
| 125 | 400 | 295 | 240 | 8 × F30 | 840 | ZB/ZBY30 | 300 | 24 | 0.75 |
| 150 | 450 | 340 | 280 | 8 × F34 | 960 | ZB/ZBY30 | 300 | 24 | 0.75 |
| 200 | 550 | 405 | 345 | 12 × F34 | 1100 | ZB/Zby60 | 600 | 24 | 1.5 |
| 250 | 650 | 470 | 400 | 12 × F41 | 1350 | ZB/Zby90 | 900 | 24 | 2.2 |
| 300 | 750 | 530 | 460 | 16 × F41 | 1650 | ZB/Zby90 | 900 | 24 | 2.2 |
| 350 | 850 | 595 | 525 | 16 × F41 | 1960 | ZB/Zby120 | 1200 | 24 | 3.0 |
| 400 | 950 | 670 | 585 | 16 × F48 | 2040 | ZB180 | 1800 | 24 | 5.5 |
MZ941H-100 شیر دروازه برقی معدن
| ابعاد اصلی دریچه (میلی متر) | پارامترهای اصلی ضد انفجار معدن دستگاه الکتریکی شیر یکپارچه یکپارچه انفجار نوع/معدن | ||||||||
| دن | سعادت | D | D1 | Z × D | H | مشخصات مدل | گشتاور (n · m) | سرعت (r/min) | نیروی حرکتی (KW) |
| 50 | 250 | 195 | 145 | 4 × F25 | 685 | ZB/ZBY15 | 150 | 24 | 0.37 |
| 65 | 280 | 220 | 170 | 8 × F25 | 725 | ZB/Zby20 | 200 | 24 | 0.55 |
| 80 | 310 | 230 | 180 | 8 × F25 | 760 | ZB/Zby20 | 200 | 24 | 0.55 |
| 100 | 350 | 265 | 210 | 8 × F30 | 830 | ZB/ZBY30 | 300 | 24 | 0.75 |
| 125 | 400 | 310 | 250 | 8 × F34 | 970 | ZB/ZBY30 | 300 | 24 | 0.75 |
| 150 | 450 | 350 | 290 | 12 × F34 | 1020 | ZB/ZBY45 | 450 | 24 | 1.1 |
| 200 | 550 | 430 | 360 | 12 × F41 | 1150 | ZB/Zby60 | 600 | 24 | 1.5 |
| 250 | 650 | 500 | 430 | 12 × F41 | 1290 | ZB/Zby90 | 900 | 24 | 2.2 |
| 300 | 750 | 585 | 500 | 16 × F48 | 1530 | ZB/Zby120 | 1200 | 24 | 3.0 |
| 350 | 850 | 655 | 560 | 16 × F54 | 1840 | ZB250 | 2500 | 24 | 7.5 |
| 400 | 950 | 715 | 620 | 16 × F54 | 2321 | ZB350 | 3500 | 24 | 11 |
شیر دروازه برقی MZ941H-160 معدن
| ابعاد اصلی دریچه (میلی متر) | پارامترهای اصلی ضد انفجار معدن دستگاه الکتریکی شیر یکپارچه یکپارچه انفجار نوع/معدن | ||||||||
| دن | سعادت | D | D1 | Z × D | H | مشخصات مدل | گشتاور (n · m) | سرعت (r/min) | نیروی حرکتی (KW) |
| 50 | 300 | 215 | 165 | 8 × F25 | 730 | ZB/Zby20 | 200 | 24 | 0.55 |
| 65 | 340 | 245 | 190 | 8 × F30 | 820 | ZB/Zby20 | 200 | 24 | 0.55 |
| 80 | 390 | 260 | 205 | 8 × F30 | 860 | ZB/ZBY30 | 300 | 24 | 0.75 |
| 100 | 450 | 300 | 240 | 8 × F34 | 920 | ZB/ZBY45 | 450 | 24 | 1.1 |
| 125 | 525 | 355 | 285 | 8 × F41 | 1010 | ZB/ZBY45 | 450 | 24 | 1.1 |
| 150 | 600 | 390 | 318 | 12 × F41 | 1070 | ZB/Zby60 | 600 | 24 | 1.5 |
| 200 | 750 | 480 | 400 | 12 × F48 | 1190 | ZB/Zby90 | 900 | 24 | 2.2 |
| 250 | 850 | 580 | 485 | 12 × F54 | 2300 | ZB/Zby120 | 1200 | 24 | 3.0 |
| 300 | 950 | 665 | 570 | 16 × F54 | 2450 | ZB180 | 1800 | 24 | 5.5 |














